Работая с нами, вы получаете
Грамотные планировочные решения, визуализация, персональные скидки на материалы от партнеров, контроль поставок и строительства.
1. Планировки и стилистика
Мы выезжаем на объект, проводим обмеры, заполняем бриф и создаём обмерный план.
Разрабатываем концептуальное решение, определяем атмосферу интерьера, подбираем идеи мебели, отделочных материалов и освещения, создаем мудборды для каждого помещения.



2. Реалистичная визуализация
Создаём реалистичные 3D-визуализации и панорамы, чтобы вы могли увидеть, как будет выглядеть ваш интерьер ещё до начала ремонта. Прорабатываем сценарии освещения и детали композиции.



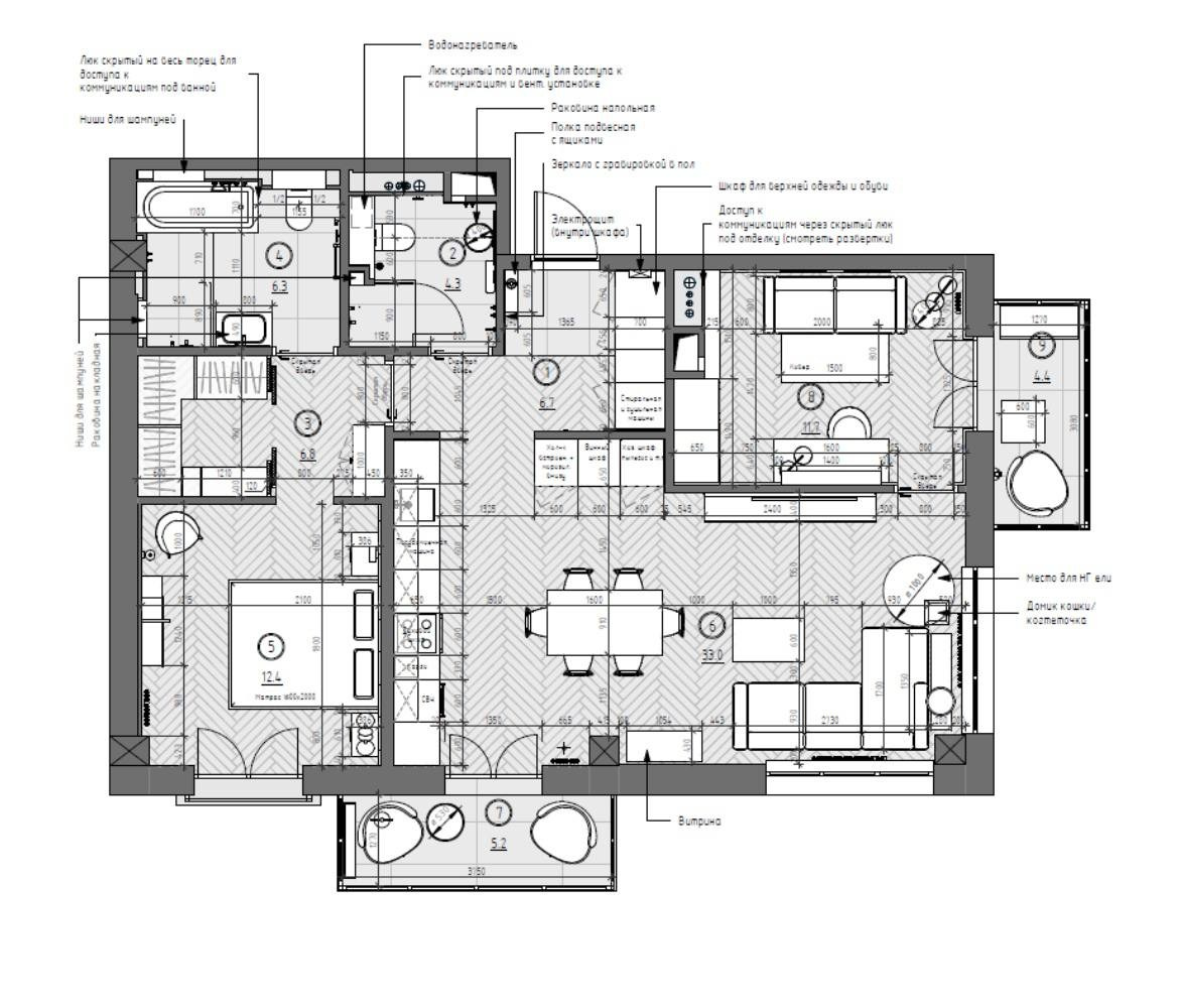
3. Ведомости и чертежи
Готовим полный комплект рабочих чертежей: планы электрики, сантехники, полов и потолков, схемы отделки, спецификации материалов и мебели. Этот пакет обеспечивает точную реализацию проекта на стройке.




4. Авторское сопровождение
(дополнительная опция)
Команда выезжает на объект, проверяет соответствие работ, координирует подрядчиков и поставки, решает все возникающие вопросы, чтобы вы могли наслаждаться процессом без стресса.


Дизайн-проект, который окупает себя
Мы создаём решения, которые не только выглядят красиво, но и оптимизируют бюджет: от разумного выбора материалов до лучших цен на закупки и точной реализации.

Снижаем стоимость закупок
Используем партнёрские условия, чтобы сократить расходы на материалы и предметы интерьера.

Учитываем бюджет на ремонт
Мы создаём проект, который учитывает ваш реальный бюджет на ремонт и позволяет инвестировать средства рационально.

Только доступные позиции
Предлагаем материалы и мебель, которые действительно можно купить — без недостижимых картинок и разочарований.

Экономия вашего времени
Мы берём на себя контроль стройки и поставок, освобождая вас от стресса, сложных решений и бесконечных согласований.
Кто будет работать над вашим проектом
Сколько специалистов потребуется для создания идеально сбалансированного дизайна с учетом вашего контекста (примерное распределение).
Технический специалист (обмеры) — 3 ч.
(время в пути и транспортные расходы включены)
Обмеры на объекте и техническая документация помещения — основа всего дальнейшего планирования и точности проекта.
Ведущий дизайнер интерьера —160 ч.
Создает концепцию, планы и логику дизайна пространства. Общение с клиентом. Отвечает за выбор материалов и мебели, цветовую палитру, освещение и координацию проекта. Следит за тем, чтобы каждая деталь соответствовала вашему образу жизни и эстетическим стандартам студии.
Креативный директор (художественный надзор) — 6 ч.
Контролирует творческое направление и визуальную целостность проекта. Следит за тем, чтобы окончательный дизайн отражал философию бренда и отличительную элегантность Alena Bulataya Design Buro.
Архитектор (технические чертежи) — 90 ч
Разрабатывает полную техническую документацию: планы потолков, напольных покрытий, освещения, сантехники и отделки. Превращает дизайнерские идеи в точные чертежи, готовые к реализации.
3D-художник (визуализация) — 90 ч
Создает фотореалистичные 3D-визуализации, которые позволяют вам ощутить атмосферу будущего интерьера еще до начала строительства.
Руководитель проектов — 20 ч.
Координирует всех участников, управляет расписанием, обеспечивает прозрачность общения и держит каждый этап под контролем — чтобы вы могли наслаждаться процессом без проблем.
Дизайнер авторского надзора
* по умолчанию не включено в дизайн-проект. (время в пути и транспортные расходы включены)
1. Выезды на объект
— визиты дизайнера на стройку для проверки соответствия выполняемых работ утверждённым чертежам и визуализациям.
2. Консультации и координация подрядчиков
— Общение с прорабом, электриками, сантехниками, мебельщиками и другими участниками проекта.
— Ответы на вопросы по чертежам, материалам и узлам.
3. Корректировки по ходу работ
— Подготовка уточнений и корректирующих схем при необходимости изменений на объекте.
— Согласование решений с клиентом.
4. Контроль качества отделочных работ
— Проверка точности отделки, геометрии, цвета, текстур, установки мебели и света.
— Замечания и рекомендации подрядчикам.
5. Помощь в подборе и заказе материалов / мебели
— Проверка наличия, спецификаций, соответствия брендов и поставщиков проекту.
— При необходимости — участие в приёмке изделий.
6. Финальный контроль перед сдачей проекта
— Проверка готового интерьера перед финальной уборкой и стилевым оформлением.
Доверие начинается с того, что можно увидеть
Конечно, мы можем сказать, что за 15 лет работы всегда соблюдали сроки, придерживались заранее согласованного бюджета — и это действительно так. Но куда важнее то, что вы можете увидеть результат сами. Ниже — несколько наших проектов, которые можно посетить лично.

Рестора MARBL
Минск, пл. Свободы, 4

Ресторан Бульбашы
Минск, пл. Свободы, 4

BRIOCHE бистро
Минск, пр. Победителей, 106

Кафе Milano
Минск, ул. Володарского, 19

Обо мне и моей команде
Меня зовут Алёна Булатая — я основатель и арт-директор дизайн-бюро, которое создаю уже более пятнадцати лет.
С самого детства меня вдохновляли люди, умеющие видеть красоту, и вещи, созданные с любовью к деталям. Позже я получила классическое образование в Национальной академии искусств и продолжила обучение в Милане — городе, где дизайн превращается в стиль жизни. Там я не просто изучала интерьерную эстетику, а училась тому, как рождается настроение, характер и ощущение пространства.
Сегодня вокруг меня — сильная команда дизайнеров и архитекторов, каждый из которых разделяет моё отношение к делу. Наш стиль я описала бы так: современная элегантность, утончённый комфорт и гармония, в которой красота сочетается с функциональностью и индивидуальными желаниями клиента.
Будем рады создать для вас пространство, которое станет вашей историей,
Алёна Булатая
Эстетика наших интерьеров не остаётся незамеченной
Работы студии привлекают внимание профильных СМИ

Мы также являемся победителями международных конкурсов

И ещё немного о нас
от людей, для которых мы создавали интерьеры

ШОУРУМ “LIGHT AVENUE”
Евгений Федоринчик, владелец салона Light Avenue.
Я и представить себе не могла, что такое неприглядное помещение можно превратить в такую красоту. Энергетически приятная и классная команда. Мы остались довольны работой и результатом.

BRIOCHE БИСТРО
Галина Корсак, владелица сети французских пекарен BRIOCHE.
Мы реализовали уже 3 совместных проекта, и каждый раз это объекты, которые притягивают всеобщее внимание — яркие, аутентичные, завораживающие. С Аленой и ее командой было очень легко и радостно работать в психологическом плане. Все всегда были спокойны и позитивны.

МАГАЗИН “JOHN DORY”
Евгений, совладелец John Dory.
Алена и ее команда креативно подошли к решению задачи. Мы создали воздушное и ненавязчивое пространство, добавили интересные акценты. Кроме того, нам удалось уложиться в бюджет, обойти строгие ограничения, которые диктует наш брендбук.

Квартира для девушки
Ася Сонмез, хозяйка квартиры.
Мой дом — мой храм. Для меня самое главное — это энергетика человека, который с первых шагов соприкасается с местом, где я буду жить. Обращение к Алёне и ее команде было лучшим решением, которое могло со мной случиться. Прошло два года, а я всё ещё еду домой, думаю, — это здорово”.
Оценка вашего дизайн-проекта
Расскажите нам, для какого пространства вы хотите создать интерьер: квартира, дом или коммерческий объект.
Укажите площадь и оставьте контакт (номер с Telegram или e-mail) — подготовим индивидуальное предложение и сроки реализации.

